FICHE ARTICLE - CODE 818075
MENU
NOS PRODUITS NOS GAMMES NOS UNIVERS MON COMPTE PANIER S.A.V GUIDE DE CHOIX
NETTOYEUR
GUIDE DE CHOIX
CEDREY

EN DIRECT
97,9%
TAUX DE PRODUIT A
EN STOCK
Photo non contractuelle

ELECTROVANNE CEME 2/2 ESM86 NF

A CDE ASSISTEE 24VCA 1'1/2 NBR
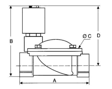
TABLEAU TECHNIQUE
Poids :3,50 kgDimension A :146 mm
Dimension B :128 mmDimension C :128 mm
Dimension D :98 mm
TABLEAU TECHNIQUE
Poids :3,50 kg
Dimension A :146 mm
Dimension B :128 mm
Dimension C :128 mm
Dimension D :98 mm

EN SAVOIR DAVANTAGE

Description technique :

L'ESM 86 est une électrovanne 2/2 à commande assistée à membrane non attelée destinée au sectionnement automatique des réseaux de fluides courants tels que l'eau.
Elle fonctionneme normalement fermé (NF) avec pression différentielle minimumum de 0,3 bar.

Construction :
- corps laiton avec noyau et pièces internes en acier inoxydable
- membrane en NBR
- raccordement taraudé G

Informations complémentaires :

Limites d'emploi :
- Protection élecrique : IP 65
- PS Fluide : 0 - 10 bar
- TS Fluide : -5°C / +80°C
- TS Ambiante : -10°C / +80°C (en courant continu, au-dessus de 40°C la pression diférentielle maximum peut être réduite)

Caractéristiques hydrauliques :
- Passage : 39 mm
- Kv : 27 m3/h
- Diff. pression min : 0.3 bar
- Diff. pression max : 10 bar
- Bobine : B6,
- Temps de manoeuvre : 50-80 ms

Risque de condensation :
En cas d'utilisation de l'électrovanne dans un milieu humide il existe un risque de condensation entre le noyau et la bobine. Ce phénomène peut entrainer des dommages sur la bobine. Prévoyez dans ce cas d'utiliser le kit d'étanchéité renforcé.

Risque de gel :
Si le fluide de l'installation est susceptible de geler, prévoir un système de réchauffage de l'électrovanne adapté.

Montage :
Montage toutes positions sauf horizontal avec bobine tête en bas.
Respecter le sens de passage indiqué par la flèche marquée sur le corps.
L'instalaltion d'un filtre en amont est recommendée.
Les électrovannes ne font pas office de clapet anti-retour. Un électrovanne NF au repos peut être traversée par un débit à contre flux. Prévoir dans ce cas l'installation d'un clapet anti-retour.

Entartrage :
les électrovannes utilisées sur des eaux dures et maintenues sous tension sur de longues périodes peuvent subir un entartrage bloquant leur fonctionnement.

ACCESSOIRES CONSEILLÉS

DOCUMENTS RELATIFS AU PRODUIT
Ici, retrouvez l'ensemble des documents relatifs à votre produit.
1 - Je choisis le document souhaité en cliquant sur ▼
2 - Je clique sur le bouton "Télécharger" pour obtenir le document
Télécharger